店舗付住宅 売店舗 オーナーチェンジ:プレミス五香
- 価格
- 3480万円
-
☆おすすめポイント☆ 京成松戸線『五香』駅 徒歩4分! 松飛台産業道路沿い・角地♪♪ 満室にて稼働中です(^^♪
- 満室時表面利回り
- 7.51%
- 現行利回り
- %
|
|
|
|
|
|
||
| 所在地 | 千葉県松戸市五香西1丁目 売店舗 オーナーチェンジ:プレミス五香 |
|---|---|
| 交通 | 新京成電鉄 徒歩4分 |
| 築年月 | 1999/05 | 新築/中古 | 中古 |
|---|---|---|---|
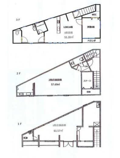
| 面積 | 174.46m² | 計測方式 | 壁芯 |
| バルコニー | m² | 向き | |
| 建物階数 | 地上3階 | 部屋階数 | 階 |
| 部屋/区画番号 | 総戸/区画数 | ||
| 建物構造 | 木造 | ||
| 間取内容 | |||
| 駐車場 | 取引態様 | 専任 | |
| 引渡/入居時期 | 相談 | 現況 | 賃貸中 |
| 地目 | 宅地 | 用途地域 | 第一種低層住居専 |
| 土地面積 | 83.05m² | 土地面積計測方式 | 実測 |
| 建ぺい率 | 60% | 容積率 | 200% |
| 土地権利 | 所有権 | 接道状況 | 角地 |
| 接道方向1 | 南西 | 接道間口1 | m |
| 接道種別1 | 公道 | 接道幅員1 | 15m |
| 接道方向2 | 北東 | 接道間口2 | 5.6m |
| 接道種別2 | 公道 | 接道幅員2 | m |
| 周辺環境 | |||
| 設備・条件 |
◎水道料・共用部分電気は貸主負担です。 |
||
| 物件番号 | 売店舗 オーナーチェンジ:プレミス五香 | ||
Loading...
※物件掲載内容と現況に相違がある場合は現況を優先と致します。







